• Skip to primary navigation
  • Skip to content

KDoh Architecture

Header Right

Main navigation

  • Agence
  • Projets
  • Actualités
  • Contact

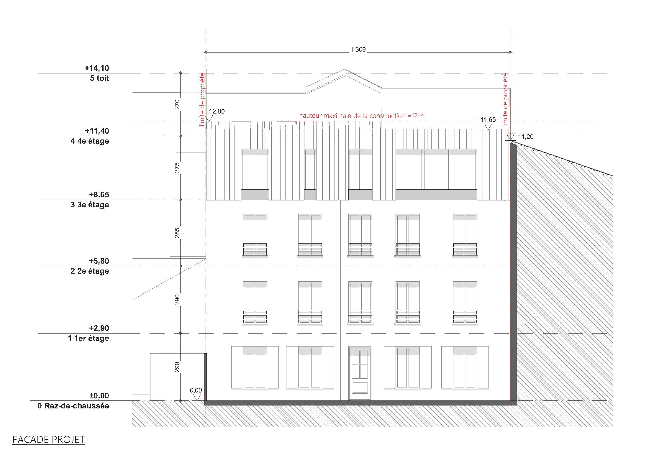
Surélévation d’un immeuble / Clichy

Privé
Karim DOH architecture
Clichy (92)
Surélévation d'un immeuble - Création d'un spacieux T2 avec une toiture terrasse Toiture en zinc aléatoire
Faisabilité
50,2 m²
-

ⓒ 2025 KDoh Architecture.